Standard Development Applications
The City of Nedlands receives numerous development applications each year which require community consultation for numerous reasons such as the City requiring the use of discretion in decision making or the type of development application requiring community consultation as per City Policy.
This engagement page is a central place to view and provide submissions on all current development applications of a standard or basic nature such as single and grouped dwelling developments, home business applications and change of use applications. Significant development applications will be advertised on a separate page.
For an overview of the Western Australian planning system, including how public advertising fits into the assessment of development applications, see here.
Community input helps the City in making decisions to approve applications with or without conditions - or to refuse applications.
How can you get involved, find out more or provide feedback?
You can:
- Read the plans and documents setting out and explaining the proposal (see document library).
- Read the FAQs.
- Read relevant information on the City's Planning Framework (see document library).
- Contact the Planning Officer listed on the development application if you have any questions.
- View the plans at the City’s Administration, 71 Stirling Highway, Nedlands (corner Smyth Road).
To make a submission
- Email: planning@nedlands.wa.gov.au
- Mail: Post to City of Nedlands, PO Box 9, Nedlands WA 6909.
Important information:
- Please make sure your submission is received by 5pm on the closing date.
- Anonymous submissions will not be accepted.
- The City will not reproduce any comments it considers offensive or defamatory.
- Read the information provided.
- Late submissions cannot be accepted.
Remember to visit this page to stay updated on the progress of development applications.
The City of Nedlands receives numerous development applications each year which require community consultation for numerous reasons such as the City requiring the use of discretion in decision making or the type of development application requiring community consultation as per City Policy.
This engagement page is a central place to view and provide submissions on all current development applications of a standard or basic nature such as single and grouped dwelling developments, home business applications and change of use applications. Significant development applications will be advertised on a separate page.
For an overview of the Western Australian planning system, including how public advertising fits into the assessment of development applications, see here.
Community input helps the City in making decisions to approve applications with or without conditions - or to refuse applications.
How can you get involved, find out more or provide feedback?
You can:
- Read the plans and documents setting out and explaining the proposal (see document library).
- Read the FAQs.
- Read relevant information on the City's Planning Framework (see document library).
- Contact the Planning Officer listed on the development application if you have any questions.
- View the plans at the City’s Administration, 71 Stirling Highway, Nedlands (corner Smyth Road).
To make a submission
- Email: planning@nedlands.wa.gov.au
- Mail: Post to City of Nedlands, PO Box 9, Nedlands WA 6909.
Important information:
- Please make sure your submission is received by 5pm on the closing date.
- Anonymous submissions will not be accepted.
- The City will not reproduce any comments it considers offensive or defamatory.
- Read the information provided.
- Late submissions cannot be accepted.
Remember to visit this page to stay updated on the progress of development applications.
-
71 Hobbs Avenue, Dalkeith - Residential - Single House (DA26-109696)
Share 71 Hobbs Avenue, Dalkeith - Residential - Single House (DA26-109696) on Facebook Share 71 Hobbs Avenue, Dalkeith - Residential - Single House (DA26-109696) on Twitter Share 71 Hobbs Avenue, Dalkeith - Residential - Single House (DA26-109696) on Linkedin Email 71 Hobbs Avenue, Dalkeith - Residential - Single House (DA26-109696) link
The applicant is proposing a single house at 71 Hobbs Avenue, Dalkeith
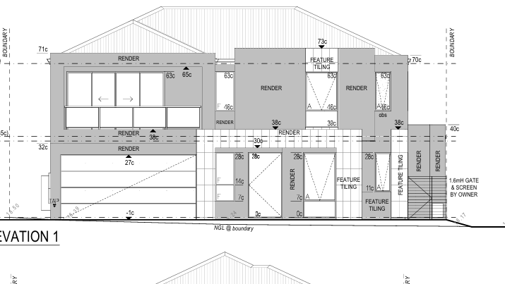
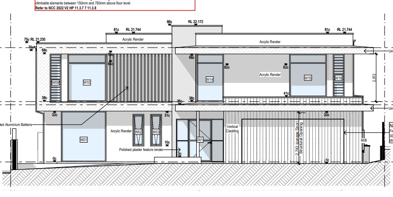
Please view the proposed plans in the document library.
Image is artist’s impression only – some materials may be subject to change.
Comments close: 9 June 2026
Assessing officer: Kirsty Klimcke
The applicant is proposing a single house at 71 Hobbs Avenue, Dalkeith
Please view the proposed plans in the document library.
Image is artist’s impression only – some materials may be subject to change.
Comments close: 9 June 2026
Assessing officer: Kirsty Klimcke
-
14 Hillway, Nedlands - Residential - Five Grouped Dwellings (DA26-111653)
Share 14 Hillway, Nedlands - Residential - Five Grouped Dwellings (DA26-111653) on Facebook Share 14 Hillway, Nedlands - Residential - Five Grouped Dwellings (DA26-111653) on Twitter Share 14 Hillway, Nedlands - Residential - Five Grouped Dwellings (DA26-111653) on Linkedin Email 14 Hillway, Nedlands - Residential - Five Grouped Dwellings (DA26-111653) link
The applicant is proposing five grouped dwellings at 14 Hillway, Nedlands.
Please view the proposed plans in the document library.
Image is artist’s impression only – some materials may be subject to change.
Comments close: 9 June 2026
Assessing officer: Kirsty Klimcke
The applicant is proposing five grouped dwellings at 14 Hillway, Nedlands.
Please view the proposed plans in the document library.
Image is artist’s impression only – some materials may be subject to change.
Comments close: 9 June 2026
Assessing officer: Kirsty Klimcke
-
69 Tyrell Street, Nedlands - Residential - Single House Addition (Garage) (DA26-111876)
Share 69 Tyrell Street, Nedlands - Residential - Single House Addition (Garage) (DA26-111876) on Facebook Share 69 Tyrell Street, Nedlands - Residential - Single House Addition (Garage) (DA26-111876) on Twitter Share 69 Tyrell Street, Nedlands - Residential - Single House Addition (Garage) (DA26-111876) on Linkedin Email 69 Tyrell Street, Nedlands - Residential - Single House Addition (Garage) (DA26-111876) link
The applicant is proposing a garage addition to the single house at 69 Tyrell Street, Nedlands.
Please view the proposed plans in the document library.
Image is artist’s impression only – some materials may be subject to change.
Comments close: 4 June 2026
Assessing officer: Kirsty Klimcke
The applicant is proposing a garage addition to the single house at 69 Tyrell Street, Nedlands.
Please view the proposed plans in the document library.
Image is artist’s impression only – some materials may be subject to change.
Comments close: 4 June 2026
Assessing officer: Kirsty Klimcke
-
46 Kingsway, Nedlands - Residential - Two Grouped Dwellings - DA26-109515
Share 46 Kingsway, Nedlands - Residential - Two Grouped Dwellings - DA26-109515 on Facebook Share 46 Kingsway, Nedlands - Residential - Two Grouped Dwellings - DA26-109515 on Twitter Share 46 Kingsway, Nedlands - Residential - Two Grouped Dwellings - DA26-109515 on Linkedin Email 46 Kingsway, Nedlands - Residential - Two Grouped Dwellings - DA26-109515 link
The applicants are proposing two new grouped dwellings at 46 Kingsway, Nedlands.
Please view the proposed plans in the document library.
Image is artist’s impression only – some materials may be subject to change.
Comments close: 29 May 2026
Assessing officer: Dillon Reid
The applicants are proposing two new grouped dwellings at 46 Kingsway, Nedlands.
Please view the proposed plans in the document library.
Image is artist’s impression only – some materials may be subject to change.
Comments close: 29 May 2026
Assessing officer: Dillon Reid
-
33 Colin Street, Dalkeith - Residential - Single House - DA26-110835
Share 33 Colin Street, Dalkeith - Residential - Single House - DA26-110835 on Facebook Share 33 Colin Street, Dalkeith - Residential - Single House - DA26-110835 on Twitter Share 33 Colin Street, Dalkeith - Residential - Single House - DA26-110835 on Linkedin Email 33 Colin Street, Dalkeith - Residential - Single House - DA26-110835 link
The applicant is proposing a single house at 33 Colin Street, Dalkeith.
Please view the proposed plans in the document library.
Image is artist’s impression only – some materials may be subject to change.
Comments close: 5PM 1 June 2026
Assessing officer: David Johnston
The applicant is proposing a single house at 33 Colin Street, Dalkeith.
Please view the proposed plans in the document library.
Image is artist’s impression only – some materials may be subject to change.
Comments close: 5PM 1 June 2026
Assessing officer: David Johnston
-
2 Shann Street, Floreat - Residential - Single House - DA26-109874
Share 2 Shann Street, Floreat - Residential - Single House - DA26-109874 on Facebook Share 2 Shann Street, Floreat - Residential - Single House - DA26-109874 on Twitter Share 2 Shann Street, Floreat - Residential - Single House - DA26-109874 on Linkedin Email 2 Shann Street, Floreat - Residential - Single House - DA26-109874 link
The applicants are proposing additions and alterations at 2 Shann Street, Floreat.
Please view the proposed plans in the document library.
Image is artist’s impression only – some materials may be subject to change.
Comments close: 26 May 2026
Assessing officer: Dillon Reid
The applicants are proposing additions and alterations at 2 Shann Street, Floreat.
Please view the proposed plans in the document library.
Image is artist’s impression only – some materials may be subject to change.
Comments close: 26 May 2026
Assessing officer: Dillon Reid
-
21 Bulimba Road - Residential - Additions and Alterations - DA26-111408
Share 21 Bulimba Road - Residential - Additions and Alterations - DA26-111408 on Facebook Share 21 Bulimba Road - Residential - Additions and Alterations - DA26-111408 on Twitter Share 21 Bulimba Road - Residential - Additions and Alterations - DA26-111408 on Linkedin Email 21 Bulimba Road - Residential - Additions and Alterations - DA26-111408 linkCLOSED: This discussion has concluded.
The applicants are proposing additions and alterations at 21 Bulimba Road, Nedlands.
Please view the proposed plans in the document library.
Image is artist’s impression only – some materials may be subject to change.
Comments close: 25 May 2026
Assessing officer: William Vardanega
The applicants are proposing additions and alterations at 21 Bulimba Road, Nedlands.
Please view the proposed plans in the document library.
Image is artist’s impression only – some materials may be subject to change.
Comments close: 25 May 2026
Assessing officer: William Vardanega
-
20 Iolanthe Street, Swanbourne - Additions and Alterations to Single House (DA26-112100)
Share 20 Iolanthe Street, Swanbourne - Additions and Alterations to Single House (DA26-112100) on Facebook Share 20 Iolanthe Street, Swanbourne - Additions and Alterations to Single House (DA26-112100) on Twitter Share 20 Iolanthe Street, Swanbourne - Additions and Alterations to Single House (DA26-112100) on Linkedin Email 20 Iolanthe Street, Swanbourne - Additions and Alterations to Single House (DA26-112100) linkCLOSED: This discussion has concluded.
The applicant is proposing additions and alterations to the single house at 20 Iolanthe Street, Swanbourne.
Please view the proposed plans in the document library.
Image is artist’s impression only – some materials may be subject to change.
Comments close: 20 May 2026
Assessing officer: Chantel Weerasekera
The applicant is proposing additions and alterations to the single house at 20 Iolanthe Street, Swanbourne.
Please view the proposed plans in the document library.
Image is artist’s impression only – some materials may be subject to change.
Comments close: 20 May 2026
Assessing officer: Chantel Weerasekera
-
22 Rockton Road - Residential - Additions and Alterations - DA26-111426
Share 22 Rockton Road - Residential - Additions and Alterations - DA26-111426 on Facebook Share 22 Rockton Road - Residential - Additions and Alterations - DA26-111426 on Twitter Share 22 Rockton Road - Residential - Additions and Alterations - DA26-111426 on Linkedin Email 22 Rockton Road - Residential - Additions and Alterations - DA26-111426 linkCLOSED: This discussion has concluded.
The applicants are proposing additions and alterations at 22 Rockton Road, Nedlands.
Please view the proposed plans in the document library.
Image is artist’s impression only – some materials may be subject to change.
Comments close: 15 May 2026
Assessing officer: Luke Smith
The applicants are proposing additions and alterations at 22 Rockton Road, Nedlands.
Please view the proposed plans in the document library.
Image is artist’s impression only – some materials may be subject to change.
Comments close: 15 May 2026
Assessing officer: Luke Smith
-
12 St Johns Wood Boulevard - Residential - Additions and Alterations - DA26-111165
Share 12 St Johns Wood Boulevard - Residential - Additions and Alterations - DA26-111165 on Facebook Share 12 St Johns Wood Boulevard - Residential - Additions and Alterations - DA26-111165 on Twitter Share 12 St Johns Wood Boulevard - Residential - Additions and Alterations - DA26-111165 on Linkedin Email 12 St Johns Wood Boulevard - Residential - Additions and Alterations - DA26-111165 linkCLOSED: This discussion has concluded.
The applicants are proposing additions and alterations at 12 St Johns Wood Boulevard, Mount Claremont.
Please view the proposed plans in the document library.
Image is artist’s impression only – some materials may be subject to change.
Comments close: 8 May 2026
Assessing officer: William Vardanega
The applicants are proposing additions and alterations at 12 St Johns Wood Boulevard, Mount Claremont.
Please view the proposed plans in the document library.
Image is artist’s impression only – some materials may be subject to change.
Comments close: 8 May 2026
Assessing officer: William Vardanega
Document Library
-
Advertising Process Flow Chart (63 KB) (pdf)
-
Residential Design Codes - Vol 1
-
Residential Design Codes - Vol. 2
-
City of Nedlands Local Planning Scheme No. 3 and Local Planning Strategy (Department of Planning, Lands and Hertiage Website)
-
Council and Local Planning Policies: List and Policy Documents (City of Nedlands website)
-
Joint Development Assessment Panel (JDAP) (City of Nedlands website)
-
39 Kinninmont Avenue - Plans for Advertising (634 KB) (pdf)
-
45 Alderbury Street - Plans for Advertising (1.4 MB) (pdf)
-
27 Lynton Street - Plans for Advertising (4.73 MB) (pdf)
-
104 Stirling Highway - Plans for Advertising (2.03 MB) (pdf)
-
29 Robinson Street - Plans for Advertising (1.11 MB) (pdf)
-
6 Ord Street - Plans for Advertisement (1.96 MB) (pdf)
-
52 Jutland Parade - Plans For Advertising (20.6 MB) (pdf)
-
17 Kitchener Street - Plans for Advertisement (725 KB) (pdf)
-
55 Jutland Parade - Plans For Advertising (4.19 MB) (pdf)
-
12 St Johns Wood Boulevard - Plans for Advertisement (1.25 MB) (pdf)
-
20 Tyrell Street - Plans For Advertising (9.7 MB) (pdf)
-
22 Rockton Road - Plans for Advertising (2.23 MB) (pdf)
-
20 Iolanthe Street - Plans For Consultation (4.95 MB) (pdf)
-
21 Bulimba Road - Plans for Advertisement (2.05 MB) (pdf)
-
2 Shann Street Floreat - Plans for Advetising (10.8 MB) (pdf)
-
46 Kingsway Nedlands - Plans for Advertising (14.1 MB) (pdf)
-
33 Colin Street Dalkeith - Plans for Advertising (2.15 MB) (pdf)
-
69 Tyrell Street - Plans for Advertising (1.26 MB) (pdf)
-
14 Hillway - Plans for Advertising (12.7 MB) (pdf)
-
71 Hobbs Avenue - Plans for Advertising (11.2 MB) (pdf)


