Standard Development Applications
The City of Nedlands receives numerous development applications each year which require community consultation for numerous reasons such as the City requiring the use of discretion in decision making or the type of development application requiring community consultation as per City Policy.
This engagement page is a central place to view and provide submissions on all current development applications of a standard or basic nature such as single and grouped dwelling developments, home business applications and change of use applications. Significant development applications will be advertised on a separate page.
For an overview of the Western Australian planning system, including how public advertising fits into the assessment of development applications, see here.
Community input helps the City in making decisions to approve applications with or without conditions - or to refuse applications.
How can you get involved, find out more or provide feedback?
You can:
- Read the plans and documents setting out and explaining the proposal (see document library).
- Read the FAQs.
- Read relevant information on the City's Planning Framework (see document library).
- Contact the Planning Officer listed on the development application if you have any questions.
- View the plans at the City’s Administration, 71 Stirling Highway, Nedlands (corner Smyth Road).
To make a submission
- Email: planning@nedlands.wa.gov.au
- Mail: Post to City of Nedlands, PO Box 9, Nedlands WA 6909.
Important information:
- Please make sure your submission is received by 5pm on the closing date.
- Anonymous submissions will not be accepted.
- The City will not reproduce any comments it considers offensive or defamatory.
- Read the information provided.
- Late submissions cannot be accepted.
Remember to visit this page to stay updated on the progress of development applications.
The City of Nedlands receives numerous development applications each year which require community consultation for numerous reasons such as the City requiring the use of discretion in decision making or the type of development application requiring community consultation as per City Policy.
This engagement page is a central place to view and provide submissions on all current development applications of a standard or basic nature such as single and grouped dwelling developments, home business applications and change of use applications. Significant development applications will be advertised on a separate page.
For an overview of the Western Australian planning system, including how public advertising fits into the assessment of development applications, see here.
Community input helps the City in making decisions to approve applications with or without conditions - or to refuse applications.
How can you get involved, find out more or provide feedback?
You can:
- Read the plans and documents setting out and explaining the proposal (see document library).
- Read the FAQs.
- Read relevant information on the City's Planning Framework (see document library).
- Contact the Planning Officer listed on the development application if you have any questions.
- View the plans at the City’s Administration, 71 Stirling Highway, Nedlands (corner Smyth Road).
To make a submission
- Email: planning@nedlands.wa.gov.au
- Mail: Post to City of Nedlands, PO Box 9, Nedlands WA 6909.
Important information:
- Please make sure your submission is received by 5pm on the closing date.
- Anonymous submissions will not be accepted.
- The City will not reproduce any comments it considers offensive or defamatory.
- Read the information provided.
- Late submissions cannot be accepted.
Remember to visit this page to stay updated on the progress of development applications.
-
20 Iolanthe Street, Swanbourne - Additions and Alterations to Single House (DA26-112100)
Share 20 Iolanthe Street, Swanbourne - Additions and Alterations to Single House (DA26-112100) on Facebook Share 20 Iolanthe Street, Swanbourne - Additions and Alterations to Single House (DA26-112100) on Twitter Share 20 Iolanthe Street, Swanbourne - Additions and Alterations to Single House (DA26-112100) on Linkedin Email 20 Iolanthe Street, Swanbourne - Additions and Alterations to Single House (DA26-112100) link
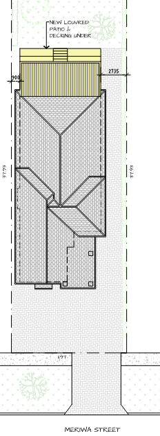
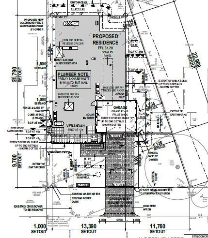
The applicant is proposing additions and alterations to the single house at 20 Iolanthe Street, Swanbourne.
Please view the proposed plans in the document library.
Image is artist’s impression only – some materials may be subject to change.
Comments close: 20 May 2026
Assessing officer: Chantel Weerasekera
The applicant is proposing additions and alterations to the single house at 20 Iolanthe Street, Swanbourne.
Please view the proposed plans in the document library.
Image is artist’s impression only – some materials may be subject to change.
Comments close: 20 May 2026
Assessing officer: Chantel Weerasekera
-
22 Rockton Road - Residential - Additions and Alterations - DA26-111426
Share 22 Rockton Road - Residential - Additions and Alterations - DA26-111426 on Facebook Share 22 Rockton Road - Residential - Additions and Alterations - DA26-111426 on Twitter Share 22 Rockton Road - Residential - Additions and Alterations - DA26-111426 on Linkedin Email 22 Rockton Road - Residential - Additions and Alterations - DA26-111426 link
The applicants are proposing additions and alterations at 22 Rockton Road, Nedlands.
Please view the proposed plans in the document library.
Image is artist’s impression only – some materials may be subject to change.
Comments close: 15 May 2026
Assessing officer: Luke Smith
The applicants are proposing additions and alterations at 22 Rockton Road, Nedlands.
Please view the proposed plans in the document library.
Image is artist’s impression only – some materials may be subject to change.
Comments close: 15 May 2026
Assessing officer: Luke Smith
-
12 St Johns Wood Boulevard - Residential - Additions and Alterations - DA26-111165
Share 12 St Johns Wood Boulevard - Residential - Additions and Alterations - DA26-111165 on Facebook Share 12 St Johns Wood Boulevard - Residential - Additions and Alterations - DA26-111165 on Twitter Share 12 St Johns Wood Boulevard - Residential - Additions and Alterations - DA26-111165 on Linkedin Email 12 St Johns Wood Boulevard - Residential - Additions and Alterations - DA26-111165 link
The applicants are proposing additions and alterations at 12 St Johns Wood Boulevard, Mount Claremont.
Please view the proposed plans in the document library.
Image is artist’s impression only – some materials may be subject to change.
Comments close: 8 May 2026
Assessing officer: William Vardanega
The applicants are proposing additions and alterations at 12 St Johns Wood Boulevard, Mount Claremont.
Please view the proposed plans in the document library.
Image is artist’s impression only – some materials may be subject to change.
Comments close: 8 May 2026
Assessing officer: William Vardanega
-
20 Tyrell Street, Nedlands - Residential - Grouped Dwelling (DA26-110605)
Share 20 Tyrell Street, Nedlands - Residential - Grouped Dwelling (DA26-110605) on Facebook Share 20 Tyrell Street, Nedlands - Residential - Grouped Dwelling (DA26-110605) on Twitter Share 20 Tyrell Street, Nedlands - Residential - Grouped Dwelling (DA26-110605) on Linkedin Email 20 Tyrell Street, Nedlands - Residential - Grouped Dwelling (DA26-110605) link
The applicant is proposing a grouped dwelling addition at 19 20 Tyrell Street, Nedlands.
Please view the proposed plans in the document library.
Image is artist’s impression only – some materials may be subject to change.
Comments close: 8 May 2026
Assessing officer: Chantel Weerasekera
The applicant is proposing a grouped dwelling addition at 19 20 Tyrell Street, Nedlands.
Please view the proposed plans in the document library.
Image is artist’s impression only – some materials may be subject to change.
Comments close: 8 May 2026
Assessing officer: Chantel Weerasekera
-
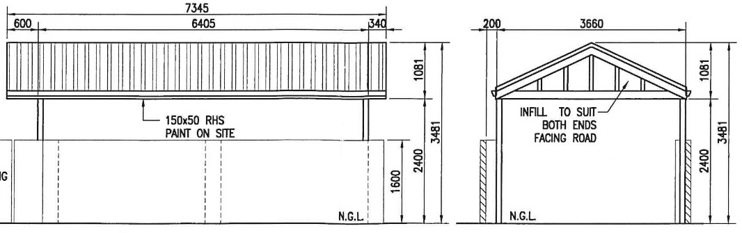
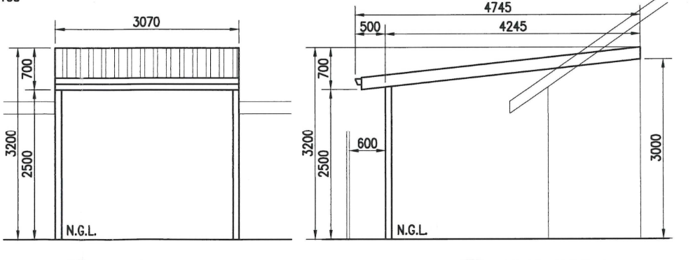
55 Jutland Parade, Dalkeith - Non-Residential – Padel Courts Additions (Dalkeith-Nedlands Bowling Club) (DA25-106002)
Share 55 Jutland Parade, Dalkeith - Non-Residential – Padel Courts Additions (Dalkeith-Nedlands Bowling Club) (DA25-106002) on Facebook Share 55 Jutland Parade, Dalkeith - Non-Residential – Padel Courts Additions (Dalkeith-Nedlands Bowling Club) (DA25-106002) on Twitter Share 55 Jutland Parade, Dalkeith - Non-Residential – Padel Courts Additions (Dalkeith-Nedlands Bowling Club) (DA25-106002) on Linkedin Email 55 Jutland Parade, Dalkeith - Non-Residential – Padel Courts Additions (Dalkeith-Nedlands Bowling Club) (DA25-106002) link
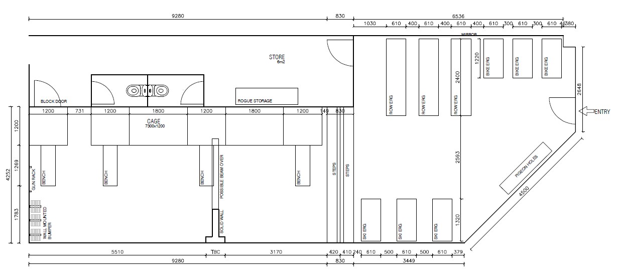
The applicants are proposing the addition of three roofed padel courts to the Dalkeith-Nedlands Bowling Club at 55 Jutland Parade, Dalkeith.
Please view the proposed plans in the document library.
Image is artist’s impression only – some materials may be subject to change.
Comments close: 8 May 2026
Assessing officer: Chantel Weerasekera
The applicants are proposing the addition of three roofed padel courts to the Dalkeith-Nedlands Bowling Club at 55 Jutland Parade, Dalkeith.
Please view the proposed plans in the document library.
Image is artist’s impression only – some materials may be subject to change.
Comments close: 8 May 2026
Assessing officer: Chantel Weerasekera
-
8 Odern Crescent - Residential - Change of Use (Unhosted Short-Term Rental) - DA26-110894
Share 8 Odern Crescent - Residential - Change of Use (Unhosted Short-Term Rental) - DA26-110894 on Facebook Share 8 Odern Crescent - Residential - Change of Use (Unhosted Short-Term Rental) - DA26-110894 on Twitter Share 8 Odern Crescent - Residential - Change of Use (Unhosted Short-Term Rental) - DA26-110894 on Linkedin Email 8 Odern Crescent - Residential - Change of Use (Unhosted Short-Term Rental) - DA26-110894 linkThe applicants are proposing a change of use application from Residential to Unhosted Short-Term Rental at 8 Odern Crescent, Swanbourne.
Please view the proposed plans in the document library.
Image is artist’s impression only – some materials may be subject to change.
Comments close: 4 May 2026
Assessing officer: William Vardanega
The applicants are proposing a change of use application from Residential to Unhosted Short-Term Rental at 8 Odern Crescent, Swanbourne.
Please view the proposed plans in the document library.
Image is artist’s impression only – some materials may be subject to change.
Comments close: 4 May 2026
Assessing officer: William Vardanega
-
17 Kitchener Street, Nedlands - Residential - Ancillary Addition - DA26-110735
Share 17 Kitchener Street, Nedlands - Residential - Ancillary Addition - DA26-110735 on Facebook Share 17 Kitchener Street, Nedlands - Residential - Ancillary Addition - DA26-110735 on Twitter Share 17 Kitchener Street, Nedlands - Residential - Ancillary Addition - DA26-110735 on Linkedin Email 17 Kitchener Street, Nedlands - Residential - Ancillary Addition - DA26-110735 linkCLOSED: This discussion has concluded.
The applicants are proposing the addition of an ancillary dwelling at 17 Kitchener Street, Nedlands.
Please view the proposed plans in the document library.
Image is artist’s impression only – some materials may be subject to change.
Comments close: 29 April 2026
Assessing officer: William Vardanega
The applicants are proposing the addition of an ancillary dwelling at 17 Kitchener Street, Nedlands.
Please view the proposed plans in the document library.
Image is artist’s impression only – some materials may be subject to change.
Comments close: 29 April 2026
Assessing officer: William Vardanega
-
52 Jutland Parade, Dalkeith - Residential - Additions and Alterations to Single House (DA26-110491)
Share 52 Jutland Parade, Dalkeith - Residential - Additions and Alterations to Single House (DA26-110491) on Facebook Share 52 Jutland Parade, Dalkeith - Residential - Additions and Alterations to Single House (DA26-110491) on Twitter Share 52 Jutland Parade, Dalkeith - Residential - Additions and Alterations to Single House (DA26-110491) on Linkedin Email 52 Jutland Parade, Dalkeith - Residential - Additions and Alterations to Single House (DA26-110491) linkCLOSED: This discussion has concluded.
The applicant is proposing additions and alterations (pet enclosure) to the single house at 52 Jutland Parade, Dalkeith.
Please view the proposed plans in the document library.
Image is artist’s impression only – some materials may be subject to change.
Comments close: 27 April 2026
Assessing officer: Chantel Weerasekera
The applicant is proposing additions and alterations (pet enclosure) to the single house at 52 Jutland Parade, Dalkeith.
Please view the proposed plans in the document library.
Image is artist’s impression only – some materials may be subject to change.
Comments close: 27 April 2026
Assessing officer: Chantel Weerasekera
-
50 Bulimba Road, Nedlands - Residential - Single House (DA26-110819)
Share 50 Bulimba Road, Nedlands - Residential - Single House (DA26-110819) on Facebook Share 50 Bulimba Road, Nedlands - Residential - Single House (DA26-110819) on Twitter Share 50 Bulimba Road, Nedlands - Residential - Single House (DA26-110819) on Linkedin Email 50 Bulimba Road, Nedlands - Residential - Single House (DA26-110819) linkCLOSED: This discussion has concluded.
The applicant is proposing a single house at 50 Bulimba Road, Nedlands.
Please view the proposed plans in the document library.
Image is artist’s impression only – some materials may be subject to change.
Comments close: 27 April 2026
Assessing officer: Chantel Weerasekera
The applicant is proposing a single house at 50 Bulimba Road, Nedlands.
Please view the proposed plans in the document library.
Image is artist’s impression only – some materials may be subject to change.
Comments close: 27 April 2026
Assessing officer: Chantel Weerasekera
-
10 Greenville Street, Swanbourne - Change of Use - Home Business (Acupuncture) (DA26-110114)
Share 10 Greenville Street, Swanbourne - Change of Use - Home Business (Acupuncture) (DA26-110114) on Facebook Share 10 Greenville Street, Swanbourne - Change of Use - Home Business (Acupuncture) (DA26-110114) on Twitter Share 10 Greenville Street, Swanbourne - Change of Use - Home Business (Acupuncture) (DA26-110114) on Linkedin Email 10 Greenville Street, Swanbourne - Change of Use - Home Business (Acupuncture) (DA26-110114) linkCLOSED: This discussion has concluded.The applicant is proposing a change of use application - Home Business (Acupuncture) at 10 Greenville Street, Swanbourne.
Please view the proposed plans in the document library.
Image is artist’s impression only – some materials may be subject to change.
Comments close: 27 April 2026
Assessing officer: Kirsty Klimcke
The applicant is proposing a change of use application - Home Business (Acupuncture) at 10 Greenville Street, Swanbourne.
Please view the proposed plans in the document library.
Image is artist’s impression only – some materials may be subject to change.
Comments close: 27 April 2026
Assessing officer: Kirsty Klimcke
Document Library
-
Advertising Process Flow Chart (63 KB) (pdf)
-
Residential Design Codes - Vol 1
-
Residential Design Codes - Vol. 2
-
City of Nedlands Local Planning Scheme No. 3 and Local Planning Strategy (Department of Planning, Lands and Hertiage Website)
-
Council and Local Planning Policies: List and Policy Documents (City of Nedlands website)
-
Joint Development Assessment Panel (JDAP) (City of Nedlands website)
-
39 Kinninmont Avenue - Plans for Advertising (634 KB) (pdf)
-
45-47 Carrington Street - Plans for Advertising (15 MB) (pdf)
-
45 Alderbury Street - Plans for Advertising (1.4 MB) (pdf)
-
27 Lynton Street - Plans for Advertising (4.73 MB) (pdf)
-
104 Stirling Highway - Plans for Advertising (2.03 MB) (pdf)
-
88 Watkins Rd - Plans for Advertising (1.22 MB) (pdf)
-
20 Lisle Street - Plans for Advertisement (1.17 MB) (pdf)
-
78 Webster Street - Plans for Advertisement (566 KB) (pdf)
-
6 Ord Street - Plans for Advertisement (1.96 MB) (pdf)
-
45 Hobbs Avenue - Plans for advertising (1.49 MB) (pdf)
-
29 Robinson Street - Plans for Advertising (1.11 MB) (pdf)
-
6 Ord Street - Plans for Advertisement (1.96 MB) (pdf)
-
39 Loftus Street - Plans for Advertising (652 KB) (pdf)
-
101 Waratah - Plans for Advertising (4.7 MB) (pdf)
-
19 Doonan Road - Plans for Advertising (1.8 MB) (pdf)
-
163 Rochdale Road - Plans for Advertising (13.3 MB) (pdf)
-
61 Tyrell Street - Plans for Advertising (1.77 MB) (pdf)
-
10 Greenville Street - Plans for Advertising (689 KB) (pdf)
-
52 Jutland Parade - Plans For Advertising (20.6 MB) (pdf)
-
50 Bulimba Road - Plans For Advertising (2.69 MB) (pdf)
-
17 Kitchener Street - Plans for Advertisement (725 KB) (pdf)
-
8 Odern Crescent - Plans for Advertisement.pdf (1.75 MB) (pdf)
-
55 Jutland Parade - Plans For Advertising (4.19 MB) (pdf)
-
12 St Johns Wood Boulevard - Plans for Advertisement (1.25 MB) (pdf)
-
20 Tyrell Street - Plans For Advertising (9.7 MB) (pdf)
-
22 Rockton Road - Plans for Advertising (2.23 MB) (pdf)
-
20 Iolanthe Street - Plans For Consultation (4.95 MB) (pdf)


